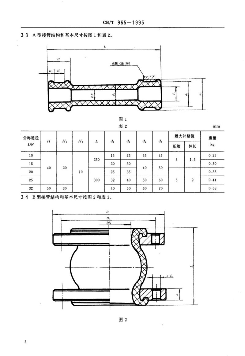
上海淞江減震器集團南通有限公司為您介紹:【行業標準】橡膠補償接管CB/T 965-1995船舶標準信息,淞江集團為眾多船舶公司提供各種減震器產品,主要包括橡膠補償接管、橡膠軟接頭等產品,主要起到減震和降噪的作用,以下是橡膠補償接管CB/T 965-1995船舶標準詳細介紹。
CB
中華人民共和國船舶行業標準
CB/T 965-1995
橡膠補償接管
1995-12-19發布
1996-08-01實施
中國船舶工業總公司發布
分類號:U55
代替CB 965-80








上海淞江減震器集團南通有限公司為您介紹:【行業標準】橡膠補償接管CB/T 965-1995船舶標準信息,淞江集團為眾多船舶公司提供各種減震器產品,主要包括橡膠補償接管、橡膠軟接頭等產品,主要起到減震和降噪的作用,以下是橡膠補償接管CB/T 965-1995船舶標準詳細介紹。
CB
中華人民共和國船舶行業標準
CB/T 965-1995
橡膠補償接管
1995-12-19發布
1996-08-01實施
中國船舶工業總公司發布
分類號:U55
代替CB 965-80







